lote para 20 moradias em banda
Referencia: 633 Estado:
Preço: 420.000 euros
420.000 euros
Terreno Detalhes
lote para 20 moradias em banda
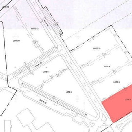
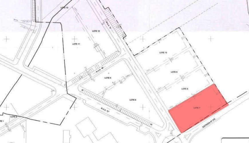
Lote de terreno para construcao onde o alvara permite 20 moradias em banda com dois pisos e cave, situado numa urbanizacao a entrada de Boliqueime junto a escola .O lote de terreno tem uma area total do terreno: 2.730,0000 m²e uma area de implantação do edifÃcio de 1.900,0000 m². Os lotes contiguos ja estao construidos e sao condominios de residencia permanente com jardim piscina e caves com estacionamento e arrecadacoes. Vilamoura e Albufeira estao a curta distancia, bem como o acesso a EN125 e tambem a via do InfanteLocalização
Solicitar visita
| * Nome: | ||
| * Telefone: | ||
| E-mail: | ||
| Mensagem: | ||
| Pedido de Visita Obter mais Informações | ||
INDICAR ESTE IMÓVEL A UM AMIGO
| O seu nome: | |
| Email do seu amigo: | |
| Mensagem: | |










